Приточно-вытяжная установка с роторным рекуператором RWN-RR-ACБесплатный проект
Установка вентиляционная RWN-RR предназначена для общеобменной вентиляции помещений. Компактность установки позволяет располагать её под потолком или у стены, экономя при этом пространство.
Корпус установки выполнен из оцинкованной стали и по запросу, снаружи может быть покрыт порошковой краской. Стандартно панели в исполнении Compact имеют толщину 25 мм, а в исполнении Vertical - 50мм. Панели заполнены слоем теплошумоизоляции на основе негорючей минеральной ваты.
Роторный рекуператор имеет уникальную конструкцию, которая позволяет сохранять максимальный КПД с наименьшими аэродинамическими потерями.
Конструктивное исполнение и условие размещения:
Исполнение Compact: Установка должна располагаться в помещении с температурой не ниже + 5 °С. Влажность помещения должна быть ниже значения, которое вызывает появление конденсата. Не допускается попадание влаги на клеммные соединения. Класс защиты – IP40. Класс за- щиты от поражения электрическим током - I.
Исполнение Vertical: Установка может располагаться вне помещений при температуре до -30 °С. Для защиты от осадков - организовать навес. Воздуховоды следует тщательно утеплить. Установка обеспечивает защиту от частичного попадания пыли. Класс защиты – IP50. Класс защиты от поражения электрическим током - I.
Тип корпуса:
25m - бескаркасная конструкция с изоляцией 25 мм: Установка может располагаться вне помещения при температуре не ниже -20°С. Класс защиты – IP50.
50m - бескаркасная конструкция с изоляцией 50 мм: Установка может располагаться вне помещения при температуре не ниже -30°С. Класс защиты – IP50.
50c - каркасно-панельная конструкцию с изоляцией 50 мм: Установка может располагаться вне помещения при температуре не ниже -30°С. Класс защиты – IP50.
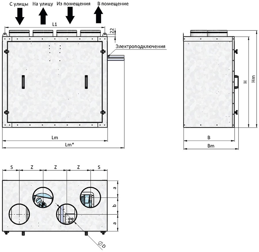
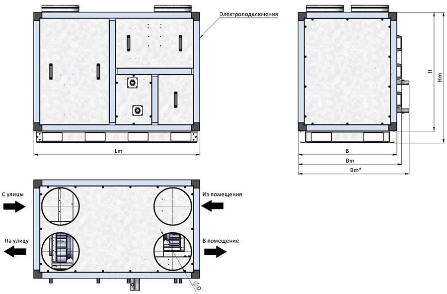
Габаритные размеры установок
Габаритные размеры RWN-RR в исполнении корпуса Compact (мм)

|
Типоразмер |
L |
B |
L1 |
B1 |
a |
b |
D |
Lm |
Bm |
Hm |
Масса, кг |
|
RWN-RR-500(25m)-АС |
1020 |
647 |
1060 |
562 |
283 |
169 |
Ø200 |
1107 |
691 |
447 |
65 |
|
RWN-RR-900(25m)-АС |
1020 |
1020 |
1060 |
962 |
505 |
262 |
Ø250 |
1107 |
1060 |
447 |
115 |
Габаритные размеры RWN-RR-500 в исполнении корпуса Vertical (мм)
|
Типоразмер |
D |
B |
H |
L1 |
a |
b |
s |
z |
Lm |
Bm |
Hm |
Масса, кг |
|
RWN-RR-500(50m)-АС |
Ø200 |
506 |
904 |
993 |
170 |
160 |
168 |
236 |
1043 |
546 |
964 |
95 |
Габаритные размеры RWN-RR-900 в исполнении корпуса Vertical (мм)
|
Типоразмер |
D |
B |
H |
Lm |
Bm |
Hm |
Масса, кг |
|
RWN-RR-900(50c)-АС |
Ø250 |
815 |
930 |
1400 |
855 |
1090 |
172 |
Технические характеристики установок
|
Модель и типоразмер* |
Расход воздуха, м3/ч |
Площадь помещения, м2 |
Напряжение, В |
Вентиляторы |
Мощность нагревателя, кВт |
Ток ТЭНа (на фазу), А |
Уровень шума Lp, дБ(A) |
|
|
Мощность, кВт |
Ток, А |
|||||||
|
RWN-RR-500-АС(D250)-НЕ1,5 |
500 |
200 |
1~220 |
0,32 |
1,5 |
1,5 |
10,5 |
44,7 |
|
RWN-RR-900-АС(D280)-НЕ1,8 |
900 |
360 |
1~220 |
0,40 |
1,8 |
1,8 |
10,5 |
41,8 |
|
RWN-RR-900-АС(B500)-НЕ1,8 |
900 |
360 |
1~220 |
0,48 |
2,2 |
1,8 |
10,5 |
41,8 |
Площадь помещения рассчитана из условия обеспечения однократного воздухообмена при высоте потолков 2,5 метра.
Lp, дБ(A) - Уровень звукового давления в окружение на расстоянии 3 метров. При работе AC-вентиляторов на пониженных скоростях может возникать дополнительный трансформаторный гул.
Номинальный режим рекуператора: на входе -24 °С ; на вытяжке: +22 °С 30%.
Номинальная мощность электронагревателя рассчитана из условий нагрева номинального расхода воздуха с 6 °С (из учета работы рекуператора) до 16 °С.
Электрический нагреватель выполнен на полупроводниковой технологии PTC (Positive Temperature Coefficient) и имеет эффект саморегуляции, то есть его мощность меняется в зависимости от скорости воздуха, который его обдувает. В связи с этим реальная мощность может отличаться от номинального значения, указанного в таблице.
Если, при низких температурах наружного воздуха, мощности нагревателя недостаточно чтобы достичь желаемую температуру приточного воздуха, то происходит автоматическое снижение производительности вентилятора.
Аэродинамические характеристики установок

Условное обозначение
Установка приточно-вытяжная с роторным рекуператором
RWN-RR-500(50m)-АС(D250)-НЕ1,5-Vertical(N)
где: RWN-RR - модель установки;
500 - типоразмер установки;
50m - толщина изоляции и тип корпуса;
AC - тип электродвигателя;
D250 - индекс мотор-колеса;
HE - электрический нагреватель (W - водяной нагреватель);
1,5 - мощность электрического нагревателя, кВт;
Vertical - исполнение установки: Vertical или Compact;
N - тип пульта управления (TS4).
Не представленные в наличии модели доступны к поставке под заказ
Оповестить о поступлении
Всю необходимую информацию также можно получить по телефону «горячей линии»
+ 7 800 200 93 96или по телефону
+7 800 505 08 67 получить консультацию