Бассейновая установка с пластинчатым рекуператором и ЕС-двигателем RWN-RP-ЕС-AquaБесплатный проект
Установка вентиляционная RWN-RP-Aqua предназначена для вентиляции помещений с повышенной влажностью, в частности для помещений бассейнов. В установке предусмотрена камера рециркуляции, которая позволяет поддерживать влажность в помещении на нужном уровне. Подбор производительности установки должен осуществляться таким образом, чтобы в летний период уличный воздух мог удалять влагоизбытки в достаточном количестве, то есть что-бы влажность в помещении поддерживалась на должном уровне. В среднем, влажность в помещениях бассейнов принимается на уровне 60%. При этом температура воздуха в помещении должна быть на пару градусов выше температуры воды в бассейне, чтобы уменьшить интенсивность испарения с зеркала воды.
Корпус установки каркасно-панельный. Панели выполнены из оцинкованной стали и покрыты порошковой краской. Внутренние перегородки также покрыты порошковой краской. Панели в исполнении Vertical имеют толщину 50 мм. Панели заполнены слоем теплошумоизоляции на основе негорючей минеральной ваты.
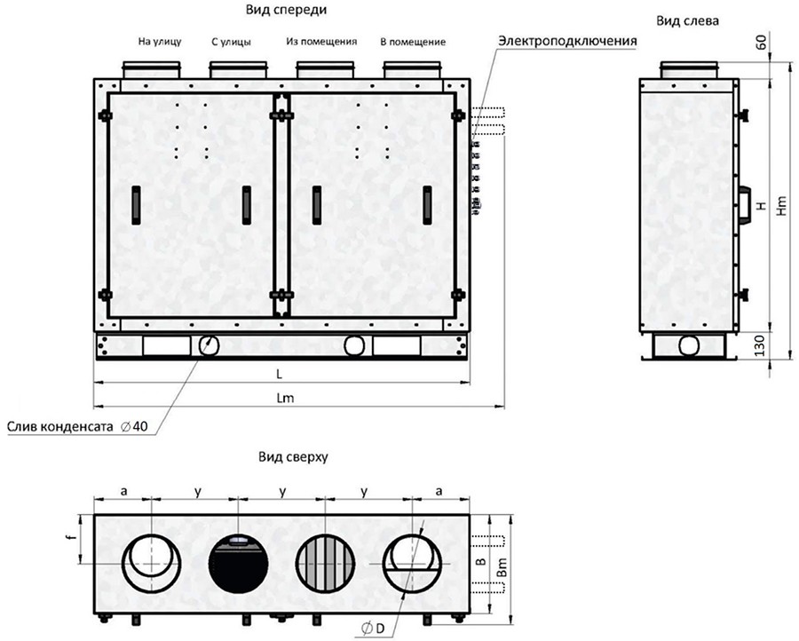
Габаритные размеры установок
Габаритные размеры RWN-RP-800 (мм)

|
Типоразмер |
L |
B |
H |
a |
y |
f |
D |
Lm |
Bm |
Hm |
Масса, кг |
|
800 |
1335 |
375 |
904 |
205 |
310 |
188 |
Ø 200 |
1470 |
415 |
1094 |
105 |
Габаритные размеры RWN-RP-1000… RWN-RP-1600 (мм)

|
Типоразмер |
B |
H |
a |
y |
f |
D1хD2 |
Lm |
Bm |
Hm |
Масса, кг |
|
1000 |
723 |
1000 |
194 |
290 |
361 |
400x200 |
1260 |
783 |
1130 |
152 |
|
1200 |
723 |
1000 |
194 |
290 |
361 |
400x200 |
1260 |
783 |
1130 |
153 |
|
1600 |
723 |
1000 |
194 |
290 |
361 |
400x200 |
1260 |
783 |
1130 |
155 |
Габаритные размеры RWN-RP-1800… RWN-RP-3500 (мм)

|
Типоразмер |
B |
H |
a |
y |
f |
D1хD2 |
Lm |
Bm |
Hm |
Масса, кг |
|
1800 |
760 |
1350 |
240 |
373 |
380 |
500x300 |
1600 |
860 |
1480 |
215 |
|
2000 |
760 |
1350 |
240 |
373 |
380 |
500x300 |
1600 |
860 |
1480 |
215 |
|
2200 |
760 |
1350 |
240 |
373 |
380 |
600x300 |
1600 |
860 |
1480 |
217 |
|
2500 |
800 |
1350 |
247 |
386 |
400 |
600x300 |
1650 |
900 |
1480 |
245 |
|
2700 |
900 |
1350 |
272 |
436 |
450 |
600x350 |
1850 |
1000 |
1480 |
300 |
|
3000 |
900 |
1400 |
272 |
436 |
450 |
600x350 |
1850 |
1000 |
1530 |
312 |
|
3500 |
900 |
1400 |
272 |
436 |
450 |
600x350 |
1850 |
1000 |
1530 |
316 |
Технические характеристики установок
|
Наименование |
Расход воздуха, м3/ч |
Площадь помещения, м2 |
Площадь зеркала воды, м2 |
Напряжение, В |
Вентиляторы |
Уровень шума Lp, дБ(A) |
|
|
Мощность, кВт |
Ток, А |
||||||
|
RWN-RP-800(50m)-ЕС-W-Vertical(N)-Aqua |
800 |
40 |
16 |
1~220 |
0,46 |
3,3 |
43,0 |
|
RWN-RP-1000(50m)-ЕС-W-Vertical(N)-Aqua |
1000 |
50 |
20 |
1~220 |
0,64 |
4,8 |
42,8 |
|
RWN-RP-1200(50m)-ЕС-W-Vertical(N)-Aqua |
1200 |
60 |
24 |
1~220 |
0,92 |
6,6 |
46,0 |
|
RWN-RP-1600(50m)-ЕС-W-Vertical(N)-Aqua |
1600 |
80 |
32 |
1~220 |
0,92 |
6,6 |
46,0 |
|
RWN-RP-1800(50m)-ЕС-W-Vertical(N)-Aqua |
1800 |
90 |
36 |
1~220 |
0,98 |
4,1 |
42,5 |
|
RWN-RP-2000(50m)-ЕС-W-Vertical(N)-Aqua |
2000 |
100 |
40 |
1~220 |
1,18 |
8,6 |
42,5 |
|
RWN-RP-2200(50m)-ЕС-W-Vertical(N)-Aqua |
2200 |
110 |
44 |
1~220 |
1,40 |
6,2 |
45,8 |
|
RWN-RP-2500(50m)-ЕС-W-Vertical(N)-Aqua |
2500 |
125 |
50 |
1~220 |
1,40 |
6,2 |
45,8 |
|
RWN-RP-2700(50m)-ЕС-W-Vertical(N)-Aqua |
2700 |
135 |
54 |
1~220 |
1,40 |
6,2 |
45,8 |
|
RWN-RP-3000(50m)-ЕС-W-Vertical(N)-Aqua |
3 000 |
150 |
60 |
3~380 |
2,2 |
3,2 |
46,7 |
|
RWN-RP-3500(50m)-ЕС-W-Vertical(N)-Aqua |
3 500 |
175 |
70 |
3~380 |
2,2 |
3,2 |
46,7 |
Площадь помещения рассчитана из условия обеспечения пятикратного воздухообмена при вы-соте потолков 4 метра. Площадь зеркала воды приведена из расчета разности влагосодержания наружного и внутреннего воздуха Δd = 4,2 гр/кг.
Технические характеристики водяного нагревателя
|
Наименование |
Мощность нагрева, кВт |
Расход теплоносителя, м3/ч |
Гидравлические потери в теплообменнике, кПа |
Рекомендуемый узел регулирования |
|
RWN-RP-800(50m)-ЕС-W-Vertical(N)-Aqua |
8 |
0,4 |
1,5 |
DN Light 15, 25-4, 1.6 |
|
RWN-RP-1000(50m)-ЕС-W-Vertical(N)-Aqua |
10 |
0,4 |
0,7 |
DN Light 15, 25-4, 1.6 |
|
RWN-RP-1200(50m)-ЕС-W-Vertical(N)-Aqua |
12 |
0,5 |
1,0 |
DN Light 15, 25-4, 1.6 |
|
RWN-RP-1600(50m)-ЕС-W-Vertical(N)-Aqua |
16 |
0,7 |
1,8 |
DN Light 15, 25-4, 2.5 |
|
RWN-RP-1800(50m)-ЕС-W-Vertical(N)-Aqua |
18 |
0,8 |
1,7 |
DN Light 20, 25-4, 2.5 |
|
RWN-RP-2000(50m)-ЕС-W-Vertical(N)-Aqua |
18 |
0,9 |
1,9 |
DN Light 20, 25-4, 2.5 |
|
RWN-RP-2200(50m)-ЕС-W-Vertical(N)-Aqua |
22 |
1,0 |
2,5 |
DN Light 20, 25-4, 4 |
|
RWN-RP-2500(50m)-ЕС-W-Vertical(N)-Aqua |
25 |
1,1 |
3,7 |
DN Light 20, 25-4, 4 |
|
RWN-RP-2700(50m)-ЕС-W-Vertical(N)-Aqua |
27 |
1,2 |
3,2 |
DN Light 20, 25-4, 4 |
|
RWN-RP-3000(50m)-ЕС-W-Vertical(N)-Aqua |
30 |
1,3 |
3,9 |
DN Light 20, 25-4, 4 |
|
RWN-RP-3500(50m)-ЕС-W-Vertical(N)-Aqua |
35 |
1,5 |
5,4 |
DN Light 25, 25-6, 4 |
Номинальный режим рекуператора: с улицы -24°С ; из помещения: +30°С 60%.
Водяной нагреватель рассчитан на нагрев воздуха с 5°С до 35°С при температуре теплоносителя 80/60°С.
Аэродинамические характеристики

Условное обозначение:
Установка приточно-вытяжная с пластинчатым рекуператором RWN-RP-800(50m)-ЕС-W-Vertical(N)-Aqua
где: RWN-RP - модель установки;
800 - типоразмер установки;
50m - толщина изоляции и тип корпуса;
ЕC - тип электродвигателя;
W - водяной нагреватель;
Vertical - постаментное исполнение - патрубки расположены сверху;
N - тип пульта управления (Z031);
Aqua - установка для помещений с повышенной влажностью.
Не представленные в наличии модели доступны к поставке под заказ
Оповестить о поступлении
Всю необходимую информацию также можно получить по телефону «горячей линии»
+ 7 800 200 93 96или по телефону
+7 800 505 08 67 получить консультацию