Каталог товаров

Вентилятор радиальный ВРВ специального назначения

Радиальные вентиляторы среднего давления серии ВРВ с загнутыми вперед лопатками специальной формы с рабочим колесом левого или правого вращения в исполнении Ex1 разработаны для перемещения газопаровоздушных смесей IIА и IIВ категорий.
СДЕЛАНО В РОВЕН
Описание товара
Характеристики моделей
Купить
Руководства

Радиальные вентиляторы серии ВРВ с загнутыми вперед лопатками специальной формы с рабочим колесом левого или правого вращения в исполнении Ex1 разработаны для перемещения газопаровоздушных смесей IIА и IIВ категорий (кроме взрывоопасных смесей с воздухом: коксового газа категории IIВ группы Т1, окиси пропилена, окиси этилена, формальдегида, этилтрихлор-этилена, этилена категории IIВ группы Т2, винилтрихлорсилена, этилхлорсилена категории IIВ группы Т3), не содержащих взрывчатых веществ, не вызывающих ускоренной коррозии оцинкованной стали и латуни, с содержанием невзрывоопасной пыли и других твердых примесей не более 100 мг/м³, не содержащих липких веществ и волокнистых материалов. 

Вентилятор ВРВ-Ex1 изготовлен из углеродистой стали. Возможные контактные поверхности между вращающимися и неподвижными деталями состоят из материалов, опасность искрообразования которых из-за трения, шлифования или ударов исключена. 

Вентиляторы не применяются для перемещения газопаровоздушных смесей от технологических установок, в которых взрывоопасные вещества нагреваются выше температуры их самовоспламенения или находятся под избыточным давлением.

Дополнительное оборудование для монтажа радиальных вентиляторов ВРВ-Ex1

ВРВ-Ex-1_доп для монтажа.jpg

Наименование

Описание

1

Вставка гибкая круглая

ВГК-ВРН/ВРВ

Вставки гибкие круглые предназначены для предотвращения передачи вибрации от вентилятора к воздуховоду

2

Вставка гибкая прямоугольная

ВГП-ВРН/ВРВ

Вставки гибкие прямоугольные предназначены для предотвращения передачи вибрации от вентилятора к воздуховоду

3

Козырёк защитный

Козырёк-ВРН/ВРВ

Козырек защитный, устанавливают на выходное отверстие для защиты от осадков; установка возможна только при положении корпуса 90° и 270°

4

Виброизоляторы

Виброизоляторы устанавливают для отсечки вибрационной нагрузки на вентилятор и на фундамент

5

Кожух ЭД-ВРН/ВРВ

Кожух ЭД предназначен для защиты электродвигателя от попадания осадков при использовании вентилятора на улице

6

Решетка защитная БАСКЕТ-ВРН/ВРВ

Решетка защитная служит для защиты радиальных вентиляторов и систем вентиляции от попадания в них посторонних предметов

Примечание: Дополнительное оборудование в стандартную комплектацию не входит.

Исполнение вентиляторов

Исполнение

Условное обозначение

Материал

Температура

перемещаемой
 среды, °С

Маркировка взрывозащиты

Классы
взрывоопасных зон помещения

Группы

взрывоопасной среды

Взрывозащищенные

Ex1

Углеродистая сталь/латунь

-40…+80

II GЬ с IIВ Т4 Х

1 и 2

Т1-Т4

Условное обозначение специальных исполнений вентиляторов

Исполнение

Условное обозначение

Назначение*

Взрывозащищенные

Ex1

Для перемещения газопаровоздушных смесей IIА и IIВ категорий (кроме взрывоопасных смесей с воздухом коксового газа категории IIВТ1, окиси пропилена, окиси этилена, формальдегида, этилтрихлор-этилена, этилена категории IIВТ2, винил-трихлорсилена, этилхлорсилена категории IIВТ3), не содержащих взрывчатых веществ, не вызывающих ускоренной коррозии алюминиевых сплавов, оцинкованной стали и латуни, с содержанием невзрывоопасной пыли и других твердых примесей не более 100 мг/м3

Полная информация о вентиляторах ВРВ-Ex в электронном pdf-каталоге по ссылке во вкладке "Характеристики".

Файлы
Вентиляторы радиальные ВРВ-Ex.pdf

Габаритные и присоединительные размеры

ВРВ-Ex1_чертеж общий.jpg

Наименование

А2

В max*

В1

D

D1

d

d1

a

а1

h

h1

n

n2

ВРВ-2,0

74

543

160

213

235

8,5

11

254

275

139

160

4

8

ВРВ-2,5

85

617

179

250

289

9,5

11

326

346

178

198

4

8

ВРВ-3,15

115

720

200

315

349

9,5

11

400

420

220

240

4

8

ВРВ-4,0

144

897

232

400

434

9,5

11

513

533

284

304

4

8

ВРВ-5,0

178

882

271

500

534

12

11

644

673

356

385

4

16

ВРВ-6,3

231

1102

349

630

665

12

11

802

831

444

473

4

16

ВРВ-8,0

297

1392

437

800

829

12

11

1010

1039

566

595

4

16

* Максимальный размер по самому большому двигателю в соответствующем типоразмере вентилятора.

Габаритные и присоединительные размеры вентиляторов в зависимости от положения корпуса ВРВ-Ex1

ВРВ-Ex1_чертеж поворот корпуса.jpg

Наименование

А*

А1

H max*

H1 max

H2*

45°

90°

270°

315°

45°

90°

270°

315°

45°

90°

270°

315°

45°

90°

270°

315°

45°

90°

270°

315°

ВРВ-2,0

374

355

337

337

434

154

164

159

159

267

359

467

420

434

444

200

200

200

280

280

159

267

220

154

164

ВРВ-2,5

457

434

403

403

522

189

199

183

183

318

423

558

508

529

539

240

240

240

340

340

183

318

268

189

199

ВРВ-3,15

572

531

504

504

655

237

237

233

226

396

536

706

645

650

642

310

310

310

410

410

226

396

335

240

232

ВРВ-4,0

723

676

643

643

829

303

298

290

290

501

680

891

810

773

768

390

390

390

470

470

290

501

420

303

298

ВРВ-5,0

905

840

790

790

1029

377

369

350

350

408

860

1130

1038

957

949

510

510

510

580

580

350

620

528

377

369

ВРВ-6,3

1136

1038

984

984

1285

476

443

429

429

769

1054

1394

1285

1222

1189

625

625

625

746

746

429

769

660

476

443

ВРВ-8,0

1435

1308

1239

1239

1619

604

554

535

535

965

1331

1767

1633

1497

1448

795

795

795

895

895

536

972

838

602

553

* Максимальный размер при различных положениях корпуса.

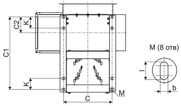
Габаритные и присоединительные размеры основания рамы вентиляторов ВРВ-Ex1

ВРВ-Ex1_чертеж рама.jpg

Наименование

С

С1

С2

bxl

k

ВРВ-2,0

275

330

48

8х14

70

ВРВ-2,5

295

330

71

8х18

70

ВРВ-3,15

332,5

395

60

8х18

75

ВРВ-4,0

456

610

127

8х27

90

ВРВ-5,0

586

695

100

11х22

100

ВРВ-6,3

550

830

200

11х22

110

ВРВ-8,0

800

1195/1486*

222

11х22

125

* Размер указан для вентилятора ВРВ-8,0-Ex1-РВ-110,0/1000/380-660.

Технические характеристики

Наименование

N, кВт

n, об/мин

Ток при 380В, А

Габарит электро-двигателя

Масса

max, кг

Виброопора

тип ЕС (А)

Кол-во

Тип

ВРВ-2,0-Ex1-РВ-2,2/3000/220-380

2,2

2855

4,85

80

30,9

4

20*25 (A) М6

ВРВ-2,5-Ex1-РВ-0,75/1500/220-380

0,75

1390

2,05

71

24,6

4

20*25 (A) М6

ВРВ-2,5-Ex1-РВ-5,5/3000/220-380

5,5

2900

11,08

100

55,1

4

20*20(A) М6

ВРВ-3,15-Ex1-РВ-0,25/750/220-380

0,25

645

1,1

71

33,3

4

20*25(A) М6

ВРВ-3,15-Ex1-РВ-0,55/1000/220-380

0,55

880

1,79

71

31,1

4

20*25(A) М6

ВРВ-3,15-Ex1-РВ-2,2/1500/220-380

2,2

1410

5,1

90

49,0

4

20*20(A) М6

ВРВ-4,0-Ex1-РВ-1,1/750/220-380

1,1

680

3,36

90

62,8

4

20*15(A) М6

ВРВ-4,0-Ex1-РВ-2,2/1000/220-380

2,2

935

5,6

100

85

4

30*25(A) М8

ВРВ-4,0-Ex1-РВ-7,5/1500/380-660

7,5

1450

15,6

132

111,8

4

30*25(A) М8

ВРВ-5,0-Ex1-РВ-3,0/750/220-380

3,0

710

7,8

112

114,1

4

30*15(A) М8

ВРВ-5,0-Ex1-РВ-7,5/1000/380-660

7,5

970

17,2

132

192

4

30*15(A) М8

ВРВ-5,0-Ex1-РВ-30,0/1500/380-660

30,0

1470

57,6

180

323,1

4

40*30(A) М10

ВРВ-6,3-Ex1-РВ-11,0/750/380-660

11,0

730

25,5

160

275,7

4

40*30(A) М10

ВРВ-6,3-Ex1-РВ-30,0/1000/380-660

30,0

980

59,3

225

416,7

4

50*40(A) М10

ВРВ-8,0-Ex1-РВ-45,0/750/380-660

45,0

740

94

250

709

8

60*40(A) М12

ВРВ-8,0-Ex1-РВ-110,0/1000/380-660

110,0

985

207

315

1254

8

70*60(A) М10

Электрическая схема подключения

РОКС-Ex_элсхема.jpg

ВРВ-Ex1_маркировка.jpg

Не представленные в наличии модели доступны к поставке под заказ

Оповестить о поступлении

Спасибо за обращение!
Наш менеджер свяжется с вами.
Руководство по эксплуатации ВРВ.pdf

Всю необходимую информацию также можно получить по телефону «горячей линии»

+ 7 800 200 93 96

или по телефону

+7 800 505 08 67 получить консультацию