Каталог товаров

Вентилятор радиальный ВЦ-14-46 исполнения дымоудаления

Вентиляторы серии ВЦ-14-46-ДУ для противопожарных систем дымоудаления (ППД-систем) представляют собой радиальные вентиляторы среднего давления с загнутыми вперед лопатками специальной формы с рабочим колесом левого или правого вращения.
СДЕЛАНО В РОВЕН
Описание товара
Характеристики моделей
Купить
Руководства

Описание 

  • Классические радиальные вентиляторы среднего давления
  • Предназначены для удаления возникающих при пожаре газов и одновременного отвода тепла за пределы обслуживаемого помещения в системах противодымной вентиляции
  • Не применимы в помещениях категории А и Б по НПБ 105-03 

Конструктив 

  • Корпус в виде улитки из оцинкованной стали
  • Углы поворота корпуса: 0°, 45°, 90°, 135°, 270°, 315°
  • Левое (Л) или правое (Пр) направление вращения рабочего колеса/положение корпуса
  • Тип рабочего колеса «РВ» с загнутыми вперед лопатками
  • Рабочее колесо из углеродистой стали с термостойким  покрытием 

Двигатель 

  • Трехфазный асинхронный электродвигатель
  • Степень защиты электродвигателя не ниже IP 54 

Условия эксплуатации 

  • Климатическое исполнение по ГОСТ 15150-69: У2 (для эксплуатации под навесом). Допускается эксплуатация в У1 (на открытом воздухе) при комплектации кожухом электродвигателя или двигателем У1
  • Температура окружающей среды от -45°С до +40°С
  • Исполнение (ДУ) дымоудаление
  • Температура перемещаемой среды:
- ДУ400 до +400°С в течение двух часов
- ДУ600 до +600°С в течение двух часов
  • Перемещаемая среда не должна содержать:
- взрывчатые и/или липкие вещества, волокнистые материалы, пыль и другие твердые примеси в концентрации более 100 мг/м3
- пары и газы с агрессивностью к металлам, покрытиям и изоляции выше агрессивности воздуха 

Дополнительная комплектация

ВЦ-14-46-ДУ_доп для монтажа.jpg

1 - Вставка гибкая круглая ВГК-ВР/ВЦ
2 - Вставка гибкая прямоугольная ВГП-ВР/ВЦ
3 - Клапан вертикального выброса КВВ-ВР/ВЦ
4 - Кожух ЭД-ВР/ВЦ
5 - Виброизоляторы 

* Дополнительные комплектующие в комплект поставки не входят.

Полная информация о вентиляторах ВЦ-14-46-ДУ в электронном pdf-каталоге по ссылке во вкладке "Характеристики".


Файлы
Вентиляторы радиальные ВЦ-14-46-ДУ.pdf

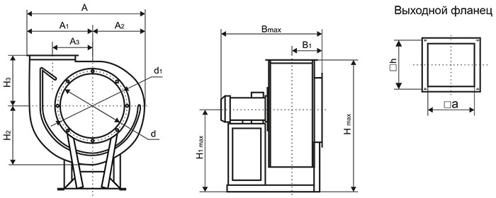
Габаритные и присоединительные размеры

ВР-80-75-ДУ_чертеж.jpg

вентилятора

Габарит

электродвигателя

A*

A1

A2

A3

B max

B1

H** max

H1 max

H2

H3

d

d1

a

h

45°

90°, 270°

135°, 315°

45°

90°

ВЦ-14-46-4,0

80

721

656

650

834

420

301

260

660

232

780

990

906

486

358

297

400

434

280

300

90

721

656

650

834

420

301

260

691

232

793

1000

916

495

358

297

400

434

280

300

100

721

656

650

834

420

301

260

722

232

803

1010

926

506

358

297

400

434

280

300

112

721

656

650

834

420

301

260

739

232

815

1022

938

518

358

297

400

434

280

300

132

721

656

650

834

420

301

260

764

232

780

1042

958

538

358

297

400

434

280

300

ВЦ-14-46-5,0

100

896

818

798

1037

527

369

324

781

269

986

1127

1128

599

440

359

500

534

350

379

112

896

818

798

1037

527

369

324

799

269

972

1239

1140

612

440

359

500

534

350

379

132

896

818

798

1037

527

369

324

874

269

957

1124

1125

597

440

359

500

534

350

379

160

896

818

798

1037

527

369

324

949

269

984

1252

1153

625

440

359

500

534

350

379

180

896

818

798

1037

527

369

324

1034

269

1005

1272

1173

645

440

359

500

534

350

379

ВЦ-14-46-6,3

132

1133

1128

993

1290

657

476

410

1000

343

1174

1510

1391

734

554

441

630

665

441

470

160

1133

1128

993

1290

657

476

410

1121

343

1201

1537

1420

760

554

441

630

665

441

470

180

1133

1128

993

1290

657

476

410

1201

343

1166

1502

1384

780

554

441

630

665

441

470

200

1133

1128

993

1290

657

476

410

1231

343

1187

1522

1404

800

554

441

630

665

441

470

225

1133

1128

993

1290

657

476

410

1305

343

1265

1525

1404

825

554

441

630

665

441

470

* Размер, зависящий от положения корпуса вентилятора.
** Максимальная высота при различных положениях корпуса вентилятора (0°, 45°, 90°).
Габаритные размеры Bmax и H1max соответственно зависят от устанавливаемого двигателя. Габаритный размер Hmax зависит от положения корпуса и устанавливаемого двигателя.

Габаритные и присоединительные размеры основания рамы вентиляторов ВР-80-75-ДУ

ВР-80-75-ДУ_чертеж рама.jpg

вентилятора

Габарит

электродвигателя

А

В

C

D

Е

F

K

L

M

n

ВЦ-14-46-4,0

80-112

570

290

314

-

-

20

163

30

8,5

8

132

711

399

433

-

-

20

163

30

8,5

8

ВЦ-14-46-5,0

100

730

385

435

10

240

100

240

-

-

6

112

700

385

435

10

240

100

240

-

-

6

132-180

846

430

505

10

283,5

179

283,5

-

-

6

ВЦ-14-46-6,3

132

850

486

546

10

325

100

325

-

-

6

160

850

486

546

10

325

100

325

-

-

6

180-225

1025

495

570

10

410,5

100

410,5

-

-

6

Технические характеристики

Наименование

Габарит  электродвигателя

N, кВт

n, об/мин

Ток при 380В, А

Масса max, кг

Виброопора тип ЕС (А)

Кол-во

Тип

ВЦ-14-46-4,0-ДУ400-РВ-0,37/750/220-380

80

0,37

675

1,64

53,3

4

20*20(А) М6

ВЦ-14-46-4,0-ДУ400-РВ-0,55/750/220-380

80

0,55

680

2,4

54,5

4

20*20(А) М6

ВЦ-14-46-4,0-ДУ400-РВ-0,75/750/220-380

90

0,75

680

2,43

60,5

4

20*20(А) М6

ВЦ-14-46-4,0-ДУ400-РВ-1,1/750/220-380

90

1,1

680

3,36

61,3

4

20*20(А) М6

ВЦ-14-46-4,0-ДУ400-РВ-0,75/1000/220-380

80

0,75

905

2,3

58,0

4

20*20(А) М6

ВЦ-14-46-4,0-ДУ400-РВ-1,1/1000/220-380

80

1,1

905

3,2

59,4

4

20*20(А) М6

ВЦ-14-46-4,0-ДУ400-РВ-1,5/1000/220-380

90

1,5

920

4,29

65,4

4

20*20(А) М6

ВЦ-14-46-4,0-ДУ400-РВ-2,2/1000/220-380

100

2,2

935

5,6

75,0

6

20*25(А) М6

ВЦ-14-46-4,0-ДУ400-РВ-3,0/1500/220-380

100

3,0

1410

6,8

64,4

6

20*20(А) М6

ВЦ-14-46-4,0-ДУ400-РВ-4,0/1500/220-380

100

4,0

1435

8,8

70,2

6

20*20(А) М6

ВЦ-14-46-4,0-ДУ400-РВ-5,5/1500/220-380

112

5,5

1440

11,7

106,8

6

25*30(А) М6

ВЦ-14-46-4,0-ДУ400-РВ-7,5/1500/380-660

132

7,5

1450

15,71

112,2

6

25*30(А) М6

ВЦ-14-46-5,0-ДУ400-РВ-1,5/750/220-380

100

1,5

690

4,4

105,2

6

25*30(А) М6

ВЦ-14-46-5,0-ДУ400-РВ-2,2/750/220-380

112

2,2

710

6,16

107,0

6

25*30(А) М6

ВЦ-14-46-5,0-ДУ400-РВ-3,0/750/220-380

112

3,0

710

8,15

107,6

6

25*30(А) М6

ВЦ-14-46-5,0-ДУ400-РВ-4,0/750/380-660

132

4,0

720

10,47

157,4

6

25*20(А) М6

ВЦ-14-46-5,0-ДУ400-РВ-4,0/1000/220-380

112

4,0

960

9,75

133,2

6

25*30(А) М6

ВЦ-14-46-5,0-ДУ400-РВ-5,5/1000/380-660

132

5,5

960

12,9

156,0

6

25*20(А) М6

ВЦ-14-46-5,0-ДУ400-РВ-7,5/1000/380-660

132

7,5

970

17,2

176,4

6

30*30(А) М8

ВЦ-14-46-5,0-ДУ400-РВ-11,0/1000/380-660

160

11,0

970

24,5

219,6

6

30*30(А) М8

ВЦ-14-46-5,0-ДУ400-РВ-15,0/1500/380-660

160

15,0

1460

30

240,0

6

30*30(А) М8

ВЦ-14-46-5,0-ДУ400-РВ-18,5/1500/380-660

160

18,5

1470

36,3

261,6

6

40*40(А) М8

ВЦ-14-46-5,0-ДУ400-РВ-22,0/1500/380-660

180

22,0

1470

43,2

291,6

6

40*40(А) М8

ВЦ-14-46-5,0-ДУ400-РВ-30,0/1500/380-660

180

30,0

1470

57,6

298,8

6

40*40(А) М8

ВЦ-14-46-6,3-ДУ400-РВ-5,5/750/380-660

132

5,5

720

13,83

232,8

6

30*30(А) М8

ВЦ-14-46-6,3-ДУ400-РВ-7,5/750/380-660

160

7,5

720

18,17

285,6

6

25*10(А) М6

ВЦ-14-46-6,3-ДУ400-РВ-11,0/750/380-660

160

11,0

730

26

309,6

6

40*40(А) М8

ВЦ-14-46-6,3-ДУ400-РВ-15,0/750/380-660

180

15,0

730

35

345,6

6

50*50(А) М10

ВЦ-14-46-6,3-ДУ400-РВ-11,0/1000/380-660

160

11,0

970

24,5

288,0

6

25*10(А) М6

ВЦ-14-46-6,3-ДУ400-РВ-15,0/1000/380-660

160

15,0

970

31,6

342,0

6

25*10(А) М6

ВЦ-14-46-6,3-ДУ400-РВ-18,5/1000/380-660

180

18,5

980

38,6

271,2

6

25*10(А) М6

ВЦ-14-46-6,3-ДУ400-РВ-22,0/1000/380-660

200

22,0

980

44,7

271,2

6

25*10(А) М6

ВЦ-14-46-6,3-ДУ400-РВ-30,0/1000/380-660

200

30,0

980

60

406,8

6

50*50(А) М10

ВЦ-14-46-6,3-ДУ400-РВ-37,0/1000/380-660

225

37,0

980

71

460,8

6

50*50(А) М10

* Технические и шумовые характеристики ВЦ-14-46-ДУ600 соответствуют ВЦ-14-46-ДУ400.

Шумовые характеристики

Наименование

Уровень звуковой мощности, дБ в октавных полосах частот, Гц

Общий, дБа

125

250

500

1000

2000

4000

8000

ВЦ-14-46-4,0-ДУ400-РВ-0,37/750/220-380

79

82

76

75

71

63

58

85

ВЦ-14-46-4,0-ДУ400-РВ-0,55/750/220-380

79

82

76

75

71

63

58

85

ВЦ-14-46-4,0-ДУ400-РВ-0,75/750/220-380

79

82

76

75

71

63

58

85

ВЦ-14-46-4,0-ДУ400-РВ-1,1/750/220-380

79

82

76

75

71

63

58

85

ВЦ-14-46-4,0-ДУ400-РВ-0,75/1000/220-380

86

88

83

82

78

69

65

91

ВЦ-14-46-4,0-ДУ400-РВ-1,1/1000/220-380

86

88

83

82

78

69

65

91

ВЦ-14-46-4,0-ДУ400-РВ-1,5/1000/220-380

86

88

83

82

78

69

65

91

ВЦ-14-46-4,0-ДУ400-РВ-2,2/1000/220-380

86

88

83

82

78

69

65

91

ВЦ-14-46-4,0-ДУ400-РВ-3,0/1500/220-380

97

100

94

93

89

81

76

103

ВЦ-14-46-4,0-ДУ400-РВ-4,0/1500/220-380

97

100

94

93

89

81

76

103

ВЦ-14-46-4,0-ДУ400-РВ-5,5/1500/220-380

97

100

94

93

89

81

76

103

ВЦ-14-46-4,0-ДУ400-РВ-7,5/1500/380-660

97

100

94

93

89

81

76

103

ВЦ-14-46-5,0-ДУ400-РВ-1,5/750/220-380

88

91

85

84

80

72

67

94

ВЦ-14-46-5,0-ДУ400-РВ-2,2/750/220-380

88

91

85

84

80

72

67

94

ВЦ-14-46-5,0-ДУ400-РВ-3,0/750/220-380

88

91

85

84

80

72

67

94

ВЦ-14-46-5,0-ДУ400-РВ-4,0/750/380-660

88

91

85

84

80

72

67

94

ВЦ-14-46-5,0-ДУ400-РВ-4,0/1000/220-380

95

97

92

91

87

78

74

100

ВЦ-14-46-5,0-ДУ400-РВ-5,5/1000/380-660

95

97

92

91

87

78

74

100

ВЦ-14-46-5,0-ДУ400-РВ-7,5/1000/380-660

95

97

92

91

87

78

74

100

ВЦ-14-46-5,0-ДУ400-РВ-11,0/1000/380-660

95

97

92

91

87

78

74

100

ВЦ-14-46-5,0-ДУ400-РВ-15,0/1500/380-660

106

109

103

102

98

90

85

112

ВЦ-14-46-5,0-ДУ400-РВ-18,5/1500/380-660

106

109

103

102

98

90

85

112

ВЦ-14-46-5,0-ДУ400-РВ-22,0/1500/380-660

106

109

103

102

98

90

85

112

ВЦ-14-46-5,0-ДУ400-РВ-30,0/1500/380-660

106

109

103

102

98

90

85

112

ВЦ-14-46-6,3-ДУ400-РВ-5,5/750/380-660

84

87

90

84

84

80

74

71

ВЦ-14-46-6,3-ДУ400-РВ-7,5/750/380-660

84

87

90

84

84

80

74

71

ВЦ-14-46-6,3-ДУ400-РВ-11,0/750/380-660

84

87

90

84

84

80

74

71

ВЦ-14-46-6,3-ДУ400-РВ-15,0/750/380-660

84

87

90

84

84

80

74

71

ВЦ-14-46-6,3-ДУ400-РВ-11,0/1000/380-660

92

95

97

92

92

88

82

79

ВЦ-14-46-6,3-ДУ400-РВ-15,0/1000/380-660

92

95

97

92

92

88

82

79

ВЦ-14-46-6,3-ДУ400-РВ-18,5/1000/380-660

92

95

97

92

92

88

82

79

ВЦ-14-46-6,3-ДУ400-РВ-22,0/1000/380-660

92

95

97

92

92

88

82

79

ВЦ-14-46-6,3-ДУ400-РВ-30,0/1000/380-660

92

95

97

92

92

88

82

79

ВЦ-14-46-6,3-ДУ400-РВ-37,0/1000/380-660

92

95

97

92

92

88

82

79

ВЦ-14-46-ДУ_маркировка.jpg

Электрические схемы подключения вентиляторов в сеть 380 В

ВР-80-75-О, ДУ_элсхема.jpg

* В вентиляторах с номинальным напряжением ∆/Y 380В/660В предусмотрена возможность запуска пониженным напряжением по схеме Y-∆. Для получения более подробной информации по подключению, обратитесь в отдел технической поддержки.


Не представленные в наличии модели доступны к поставке под заказ

Оповестить о поступлении

Спасибо за обращение!
Наш менеджер свяжется с вами.
Руководство по эксплуатации ВЦ-14-46.pdf

Всю необходимую информацию также можно получить по телефону «горячей линии»

+ 7 800 200 93 96

или по телефону

+7 800 505 08 67 получить консультацию